
Queens - Retail Design
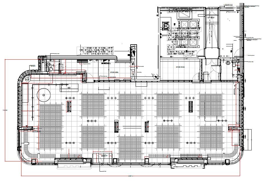
The design of the Queens store in collaboration with Heals & Son. I was commissioned to design and mange the construction of the first new bricks and mortar store for over a decade. The space was over 300m2 and was a blank canvass. A great collaboration with the Heals Team and was able to offer my skills and expertise to deliver a great looking store.


Over 300m2 of retail space.

Bespoke furniture and fixtures.



